Шумоглушители трубчатые прямоугольные ГТП применяются в проточных или вытяжных системах прямоугольного сечения для снижения шума и вибраций.
Применение
Шумоглушитель ГТП используется в системах вентиляции и кондиционирования воздуха для погашения уровня аэродинамического шума, возникающего по причине работающего оборудования и передвижения воздушных масс в системах. Конструктивно шумоглушители ГТП представляют собой два прямоугольных канала, различной ширины и высоты, между которыми уложен звукоизоляционный материал. Такая конструкция позволяет значительно уменьшить шум и вибрацию не снижая производительность системы.
КОНСТРУКЦИЯ
Шумоглушители ГТП изготавливаются из оцинкованной стали, а в качестве шумопоглащающего материала используется негорючая минеральная вата изолированная от воздушного потока плотным пароизоляционным материалом* – полностью исключающим попадание мельчайших частей мин.ваты в воздуховод . Шумопоглощающий и защитный слой закрепляются внутри глушителя прочной оцинкованной стальной сеткой.. По стандарту ГТП изготавливаются на шинореечном соединение (шина 20/30мм). Минимальный присоединительный размер глушителя 100х100мм. ГТП изготавливаются на фланцевом соединении.
*прочный двухслойный материал из полипропиленовой ткани, с покрытием из полимерной пленки. Материал экологически безопасен и не вступает в химическую реакцию с контактируемыми поверхностями. Не подвержен биологическому разложению!
Пример обозначения: ГТП 300x(h)200-900
ГТП – тип глушителя, шумоглушитель трубчатый прямоугольного сечения
300x(h)200 – (300х200мм) типоразмер шумоглушителя, по проходному сечению.
900 – L=900мм, длина шумоглушителя
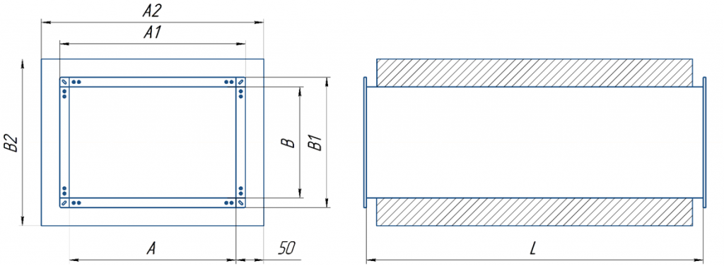
*Размер: А1=А+60мм, В1=В+60мм
*Размер: А2=А+100мм, В2=В+100мм
*По заявке рассматривается возможность изготовления шумоглушителей нестандартных размеров, но в пределах минимального (100х100 мм) и максимального (700х700 мм) размеров (АхВ), при длине (L) 600мм или 900мм (1000). Свыше максимального размера следует использовать шумоглушители типа ГП.
|
Тип глушителя |
L |
A |
B |
|---|---|---|---|
|
ГТП 200-100 |
600 или 900 |
200 |
100 |
|
ГТП 300-200 |
300 |
200 |
|
|
ГТП 400-200 |
400 |
200 |
|
|
ГТП 400-300 |
400 |
300 |
|
|
ГТП 400-400 |
400 |
400 |
Чтобы приобрести понравившийся товар, необходимо его заказать. Есть несколько сценариев того, как это можно сделать.
- Выбрать понравившийся товар и нажать кнопку «Заказать». При оформлении заказа заполнить форму. Вписать информацию в поля: ФИО, телефон и e-mail. Затем вам перезвонит менеджер, чтобы подтвердить ваше согласие на совершение покупки.
- Выбрать понравившийся товар и нажать кнопку «В корзину». Затем перейти в корзину и нажать «Оформить заказ». Далее заполнить форму с контактными данными и отправить заявку. С вами свяжется менеджер для дальнейшего обсуждения.
Оплата
Мы работаем с физическими и юридическими лицами. И предоставляем сразу два варианта оплаты.
- Наличные. Вы подписываете товаросопроводительные документы, расплачиваетесь денежными средствами, получаете товар и чек.
- Безналичный расчет. Принимаем карты Visa и MasterCard. Доступен при курьерской доставке.
Доставка
Можем доставить ваш заказ собственными ресурсами. Либо через варианты доставки:
- Доставка транспортной компанией. Специалист предложит выбрать удобное время доставки и уточнит адрес.
- Самовывоз со склада. Для получения заказа обратитесь к сотруднику в зоне выдачи и назовите номер.
